Clear, builder-friendly garage plans for a practical two-car detached garage
These carefully designed construction drawings provide everything needed to build a durable and attractive two-car detached garage. The design features a classic 6:12 gable roof, 9-foot wall height, and a layout optimized for parking two vehicles while maintaining comfortable interior clearance.
These plans are designed using common residential construction practices and are suitable for submission to many local building departments. Some jurisdictions may require review or modification prior to permitting.
Not sure what size garage you need?
Before you buy plans, compare the most common detached garage widths, depths, and layout options. Our garage size chart shows standard 1-car, 2-car, and 3-car dimensions, plus quick guidance on when 24×24 is the right fit.
Most common 2-car size
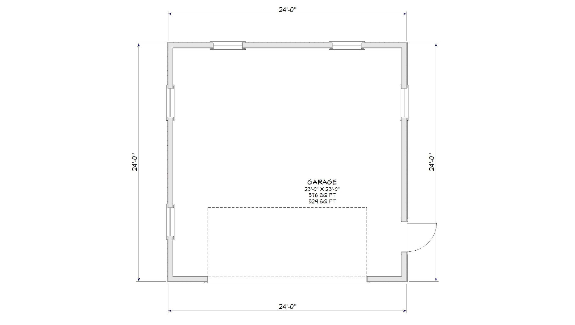
24×24 is one of the most practical all-around two-car garage sizes because it balances vehicle parking, door swing, and usable storage space.
At-a-glance specifications and typical construction features

Dimensioned floor plan included

Exterior elevation included

Builder and Pro plan packages

$599
Recommended for experienced builders.
- Basic detached garage construction drawing package
- Instant digital download
- Best fit for buyers comfortable interpreting standard residential drawings
$849
Recommended for homeowners and permit submissions.
- More complete construction document package
- Instant digital download
- Strongest fit for buyers wanting the fullest package shown on Gumroad
Start with Builder and upgrade later
If you purchase the Builder Set and later decide you need the Pro Set, you can upgrade at any time for $250.
Simply email your original purchase receipt number and a secure upgrade link can be provided so you can purchase the Pro Set at the discounted upgrade price.
Instant delivery
Files will be available for download immediately after purchase. This is a digital product. No physical plans will be shipped.
One structure per purchase
Plans are licensed for construction of one structure. If additional structures are desired, purchase additional licenses.
Local review may still be required
Local building codes, site conditions, snow loads, wind loads, and soil conditions vary by location. Some jurisdictions may require review or modification by a licensed professional prior to permitting.
It is the responsibility of the purchaser, builder, or contractor to verify compliance with local building requirements before construction.
Choose your plan package and complete checkout on Gumroad
The site and checkout flow are aligned so buyers see the same graphics, product positioning, and package options all the way through purchase.